Una minicasa per 5
Vivere in 5 in un piccolo appartamento urbano, rendendolo gradevole e funzionale: si può? Due designer IKEA hanno raccolto la sfida. Ecco le loro soluzioni.


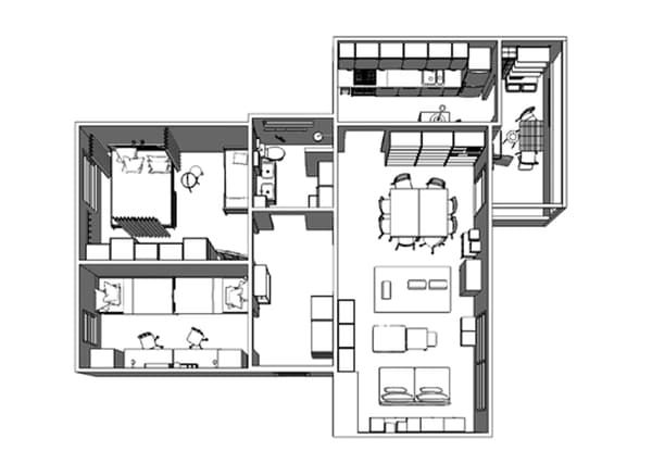
Una sfida ai piccoli spazi
Le interior designer Emma Persson Lagerberg ed Emilia Ljungberg hanno raccolto una sfida intrigante: creare una piccola casa per una famiglia di cinque persone, infondendo carattere all'ambiente e senza spendere una fortuna. ‘Abbiamo realizzato uno spazio colorato e vivace, nuovo e moderno, con soluzioni pratiche e funzionali.’ Grazie a mobili flessibili, stanze nelle stanze e soluzioni smart, questo è il risultato...
«Un approccio multifunzionale è essenziale; in una delle camere da letto abbiamo usato i mobili PLATSA per creare un angolo lettura per il figlio più piccolo e uno spazio dedicato alla toeletta della mamma.»
Spazi condivisi
La cameretta è divisa in due zone di uguale dimensione, delimitate dai due differenti colori della parete e dalle scrivanie affiancate. ‘In questo modo ogni bambino si sente padrone del suo spazio,’ spiega Emilia. ‘Il letto SLÄKT ha un letto estraibile per gli ospiti e cassetti per organizzare la biancheria. Una lampada da lettura permette di leggere le storie della buonanotte senza disturbare.’
«Per un giusto equilibrio tra privacy e condivisione, ognuno ha uno spazio tutto suo, anche se piccolo, e le zone condivise sono flessibili. Il divano letto FLOTTEBO ha uno spazioso contenitore sotto il sedile e si trasforma velocemente in un letto per gli ospiti»
Un'anta diversa
Per creare un punto d'attenzione in un ambiente, niente di meglio di un motivo grafico che si stacca dal contesto. 'Per rendere più interessante questo angolo della stanza, abbiamo completato il mobile METOD con le nuove ante YTTERBYN dai motivi grafici,’ spiega Emilia. ‘Le nostre fonti di ispirazione sono svariate,’ aggiunge Emma. ‘Da David Hockney, Los Angeles e gli anni ’80 al cubismo e a Tetris...’
«In cucina, i binari e le mensole KUNGSFORS permettono di tenere a portata di mano ciò che si utilizza quotidianamente. Nella nicchia, un carrello GRUNDTAL fa guadagnare in praticità, anche per apparecchiare la tavola.»
Un bagno più funzionale
Emma ed Emilia hanno creato un efficiente bagno multifunzionale. ‘Pur essendo piccolo, si adatta alle esigenze di tutta la famiglia anche nei momenti più congestionati,’ spiega Emilia. ‘Questo grazie al doppio lavandino, a un piccolo sgabello, ai ganci da parete e a una buona organizzazione,’ aggiunge Emma. Con qualche idea smart, come un secondo specchio estensibile appeso alla parete, si smaltisce meglio la fila mattutina per il bagno...
Una lavanderia organizzata
La lavanderia è organizzata con un sistema di mensole e contenitori su binari. ‘I cesti della biancheria sono facili da raggiungere così anche i bambini possono mettere a lavare i panni sporchi in autonomia,’ spiega Emilia. ‘Sopra la lavatrice c'è uno spazio per piegare la biancheria. I detersivi, invece, sono riposti sul ripiano più alto, lontano dalla portata dei più piccoli.’
Una casa su misura
Con soluzioni pratiche e mobili che hanno più di una funzione, anche una famiglia numerosa può creare una casa adatta alle esigenze di ognuno. ‘È importante conservare un pizzico di leggerezza e non prendersi troppo sul serio,’ spiega Emma. ‘Il design d'interni è soprattutto divertimento.’
Ci piace vedere fino a che punto arriva la creatività dei nostri clienti con i prodotti IKEA. Ricorda però che le modifiche apportate al prodotto rispetto alla sua forma e alla sua funzione originale fanno decadere la garanzia e il diritto al reso.
REALIZZATO DA
Interior designer: Emma Persson Lagerberg, Emilia Ljunberg
Foto: Martin Cederblad


