Frag die Designerin: Studiowohnung im Familienformat

- Produktinformationsseite
"
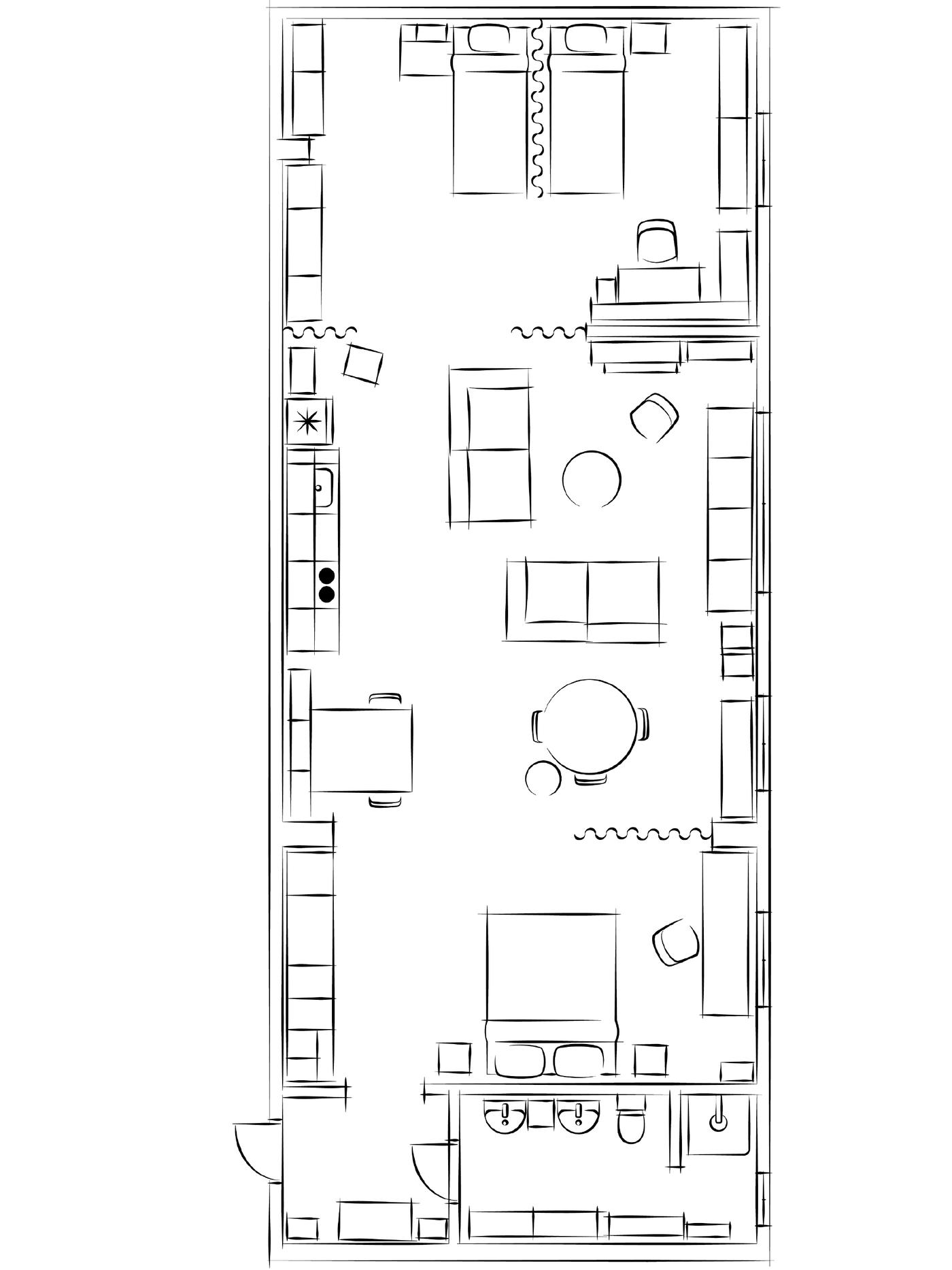
Ohne Türen und Wände im Wohnbereich nutzten wir Gardinen und Vorhänge als bewegliche Unterteilung für die Bereiche und zur Intensivierung der Privatsphäre."
Annette YdholmInneneinrichterin

- Produktinformationsseite
"
Wichtig sind Möbel, die sich für viele unterschiedliche Aktivitäten nutzen lassen und weggeräumt werden können, wenn der Platz mal knapp ist."
Annette YdholmInneneinricherin

- Produktinformationsseite
"
Beim Einkauf solltest du auf Aufbewahrungen achten, die sich erweitern und individualisieren lassen. So gewinnst du mehr Raum."
Annette YdholmInneneinrichterin















